38 Boulevard Solférino 92500 Rueil-Malmaison

Spacieux 4 pièces lumineux – Quartier Alexandre Dumas / Rue Monte Cristo


< Retour

Partager sur

gallery loader
Nouveauté

Appartement 92 m² - 4 Pièces - Paris 780 000


Description de l'offre Ref V453253


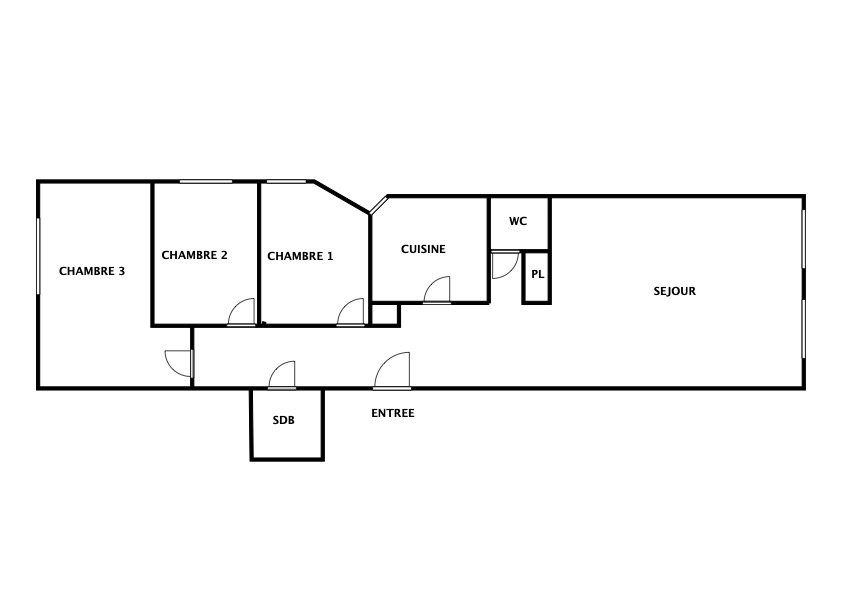
Spacieux 4 pièces lumineux – Quartier Alexandre Dumas / Rue Monte Cristo L'agence GOLDIMMO vous propose dans l’un des quartiers les plus recherchés du 20e arrondissement, à deux pas du métro Alexandre Dumas et de la très agréable rue de Bagnolet, découvrez ce bel appartement traversant de 92 m², situé au 2e étage avec ascenseur d’un immeuble récent bien entretenu (construction années 90), dans une rue paisible à sens unique. Ce bien se distingue par sa luminosité et sa distribution idéale : Une entrée avec rangement, Un vaste séjour donnant sur de grandes baies vitrées orientées sud-ouest, Trois chambres avec rangements, Une cuisine indépendante, entièrement équipée et aménagée, Une salle d’eau avec WC, Un deuxième WC séparé, Nombreux rangements. En excellent état, l’appartement ne nécessite aucun travaux. Une cave saine en sous-sol complète le bien. Les charges de copropriété sont raisonnables (187€/mois) dans cette résidence à taille humaine (15 lots seulement). En supplément, un box fermé est proposé en sous-sol pour 20 000 €.  Localisation idéale : Commerces de proximité, écoles, squares, transports… Le tout dans une ambiance de quartier conviviale, entre vie de village et animation urbaine. Un bien rare offrant un cadre de vie agréable et fonctionnel, à découvrir sans tarder.

Diagnostics de performance énergétique


DPE
DPE
DPE en cours

Descriptif du bien


Code postal 75020


Surface habitable (m²) 92 m²


Surface loi Carrez (m²) 92 m²


Nombre de chambre(s) 3


Nombre de pièces 4


Etage 2


Ascenseur OUI


Nb de salle de bains 1


Cuisine SEPAREE


Type de cuisine EQUIPEE


Mode de chauffage Autre


Type de chauffage Autre


Format de chauffage Individuel


Nombre de garage 1


Cave OUI


Exposition SUD-OUEST


Prix de vente 780 000 €


Les honoraires d'agence seront intégralement à la charge du vendeur  


Charges 187 €


Cette annonce vous intéresse ?


* Champs obligatoires

* : Les informations recueillies sur ce formulaire sont enregistrées dans un fichier informatisé par La Boite Immo agissant comme Sous-traitant du traitement pour la gestion de la clientèle/prospects de l'Agence / du Réseau qui reste Responsable du Traitement de vos Données personnelles.
La base légale du traitement repose sur l’intérêt légitime de l'Agence / du Réseau.
Elles sont conservées jusqu'à demande de suppression et sont destinées à l'Agence / au Réseau.
Conformément à la loi « informatique et libertés », vous pouvez exercer votre droit d'accès aux données vous concernant et les faire rectifier en contactant l'Agence / le Réseau.
Si vous estimez, après avoir contacté l'Agence / le Réseau, que vos droits « Informatique et Libertés » ne sont pas respectés, vous pouvez adresser une réclamation à la CNIL.
Nous vous informons de l’existence de la liste d'opposition au démarchage téléphonique « Bloctel », sur laquelle vous pouvez vous inscrire ici : https://www.bloctel.gouv.fr 
Dans le cadre de la protection des Données personnelles, nous vous invitons à ne pas inscrire de Données sensibles dans le champ de saisie libre
Ce site est protégé par reCAPTCHA, les Politiques de Confidentialité et les Conditions d'Utilisation de Google s'appliquent.